Принцип действия
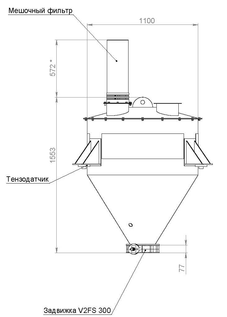
Весовой дозатор цемента, песка или зерна представляет собой емкость, которая висит на раме. В местах крепления к раме устанавливаются тензодатчики, которые передают информацию о текущем весе емкости на центральный пульт.
В результате программа управления всегда имеет данные о текущем весе дозатора.
Стандартно, наверху дозатора делается три фланца для присоединения шнековых транспортеров, для подачи материала в дозатор и фильтра дозатора, для отсечения пыли от выходящего из дозатора потока воздуха.
Когда достигается нужный вес дозатора, автоматика подает сигнал, автоматически открывается нижняя пневмозадвижка и весь цемент, песок, зерно или другой сыпучий материал выходят.
Если материал прилипает к стенкам дозатора, то ставится небольшой вибратор, который включается при открытии задвижки или если объем дозатора больше 1 куб.м., то устанавливается система аэрации.
Конкурентные преимущества весовых дозаторов
- тензодатчики высшей категории точности, производитель Тензо-М,
- пневматика Камоцци, Италия,
- надежная нижняя задвижка, фирма WAM, Италия,
- точность и аккуратность исполнения, все детали производятся на станке лазерной резки Trumpf.
Комплектация
в стоимость стандартных дозаторов включено:
- емкость дозатора
- три верхних патрубка для подачи материалов в дозатор
- комплект тензодатчиков (Тензо-М, Россия)
- нижняя пневмозадвижка с пневмоцилиндром, диаметр 300мм(WAM, Италия) Можно установить другой диаметр и ручной или электро привод, тогда стоимость перерасчитывается
- пневмораспределитель (WAM, Италия)
- фильтр грубой очистки
- два датчика положения задвижки (WAM, Италия)
то есть приобретая стандартный дозатор вы получаете полностью готовое устройство, которое можно встроить в любую линию (щелкните фото справа чтобы посмотреть комплектацию задвижки).
Опции (указываются при заказе)
- рама дозатора
- изменение диаметра задвижки и типа привода, варианты — электрический, ручной (пневматический ставится по умолчанию)
- установка вибратора или аэрационной системы
- производство пульта управления для всей системы дозирования
- разработка полной системы подачи материалов, пневмоподача
