Завод Строй-Бетон известен на рынке как производитель надежного и качественного оборудования и разработчик комплексных решений в сфере производства сухих смесей и бетонов.
Наш растариватель биг-бегов СанниМикс Биг-Р производится в России и является усовершенствованной моделью итальянского растаривателя производимого мировым лидером фирмой WAM.
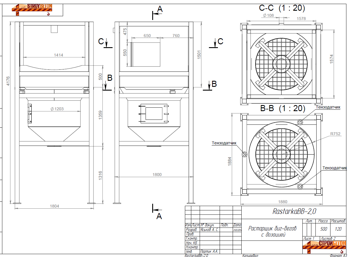
Почему мы стали производить его самостоятельно? В ходе работы с итальянскими растаривателями у наших клиентов возникали следующие пожелания к его доработке:
- Использовать в качестве основного материала сталь
- Усилить конструкцию (раму) (поставить дополнительные ребра распорки, чтобы предотвратить, насколько возможно, деформацию конструкции при ударе мешком. Поставить более толстые трубы)
- Усилить смотровое окно (поставить две обычных петли и две защелки)
- Лестница не входит в комплект биг-бега
- Использовать один контур аэрации
- Установить защитный кожух с трёх сторон. С одной стороны кожуха смотровое окно.
Мы не только изменили конструкцию согласно этим пожеланиям, но и добавили удобные и надежные посадочные места для тензоопор. Обычно тензоопоры можно установить только в основание конструкции, что делает не надежным всё конструкцию, так как во время работы рядовым случаем являются удары биг-бэгом об верхнюю часть растарщика, что создаёт критический момент. В нашем растаривателе тензодатчики установлены в средней части, более защищенном от внешних воздействий месте.
Конкурентные преимущества и особенности
- стандартные надежные места тензоопор
- усиленная, долговечная конструкция
- усиленное смотровое окно
- защитный кожух со смотровым окном
- встроенная аспирация, готовый выход, надо только подключить к системе
- готовый нижний фланец для подключения шнека или пневмосистемы
- наше оборудование сертифицировано
Любой растариватель поставляется на выбор в комплектации (включено в цену):
- вибратором и виброопорами
- посадочными площадками для тензодатчиков (с тензодатчиками нельзя ставить вибратор, вместо него устанавливается 2-3 вибровентилятора)
Технические характеристики (типовой, зависит от модели)
- Габаритные размеры, ДхШхВ, мм — 1805х1800х4180
- Вес, кг — 600
- Напряжение питание вибратора — 380В
- Точность измерения веса (в комплектации с тензодатчиками) +-1кг
- Максимальная нагрузка, тонн — 2,5
Комплект поставки (типовой, зависит от модели)
- Растариватель биг-бегов
- Лестница
- Защитный кожух с аспирацией и трубой выхода на аспирацию
- Нижний фланец для крепления шнека или пневмосистемы
- Вибратор
Дополнительные опции
- Тензодатчики для измерения веса
- Пульт отображения веса + передача информации о весе на центральный компьютер
- Вибровентиляторы
- Передача порошка из растаривателя возможна способами:
- шнековым транспортером
- передача в пневмолинию с помощью секторного затвора RV и специального модуля рассеивания при подаче в пневмомагистраль
- перекачка пневмокамерным насосом
